+34 971 698 242
Wij brengen Uw objekt direkt naar de klanten: door middel van de beste positioneringen in zoekmachines en onze makelaarsbureaus ter plaatse. Zo realiseren wij ons gezamenlijk doel: een snelle verkoop van Uw objekt voor de optimale prijs... Lees er hier meer over...
Er is bijna geen stabielere kapitaalbelegging als onroerend goed op een goede locatie op Mallorca. Een optimaal rendement behalen en Uw onroerend goed aan betrouwbare klanten verhuren... ... Lees er hier meer over...

An exceptional building plot with a total area of 53,503 sqm is offered for sale in an attractive location. The property is sold with an already approved basic project and benefits from an advanced licensing status. This allows you to enjoy a significantly reduced construction timeline as well as full legal security within the framework of current building regulations – a significant advantage for private use.
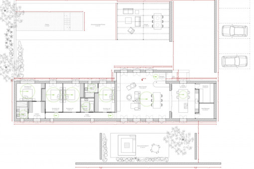
The planned residence impresses with a well-conceived layout and generous architecture in a high-quality finca style. With a ground floor living area of 236.55 sqm, the design includes a representative living and dining area of 61 sqm, offering ample space for social gatherings and an open, airy atmosphere. The separate kitchen of 24.90 sqm, including a pantry, meets the highest standards of comfort and functionality. The layout is completed by 4 spacious double bedrooms, 3 elegant bathrooms, a dressing area, hallway, and a technical room. The total building volume amounts to 859.89 m³, underlining the solid construction.
The outdoor areas are equally impressive: more than 100 sqm of terraces and exterior spaces create ideal conditions for enjoying Mediterranean outdoor living. A 51.60 sqm pergola provides sheltered relaxation areas, while the 33 sqm swimming pool (11 x 3 m) ensures refreshing moments of leisure. The expansive plot guarantees privacy, tranquility, and a wide range of design possibilities.
This project offers the rare combination of a large plot, approved planning, and high legal certainty. It is ideal as a private project for building an exclusive finca in Mallorca.
The plot is situated in an attractive location just outside Portocolom and can be reached in approximately three minutes by car. This charming coastal town is known for its picturesque natural harbour, relaxed atmosphere, and a wide selection of restaurants, cafés, and small boutiques along the waterfront promenade.
The town of Felanitx is only about ten minutes away. Here you will find numerous shopping facilities, supermarkets, bakeries, and other stores for everyday needs. The traditional weekly market is particularly popular, offering regional products and authentic Mallorcan flair.
The sea and the nearest bathing area are also less than ten minutes away, further highlighting the excellent location of the plot. This property therefore combines peaceful, nature-oriented living with excellent access to the coast, harbour life, and full urban infrastructure.
All information is correct to the best of our knowledge. Errors and prior sale excepted. This prospectus is purely for information purposes. Only the notarized deed of sale is legally binding.
Objekt-Nr.:
122651
Locaties:
Portocolom
Perceel:
53.003 m²
Bebouwbaar:
![]()
Bebouwbaar m²:
-
Bouwvergunning:
-
Zeezicht:
-
Prijs:
€ 292.000,-
Online- viewing:
Hartelijk dank voor Uw aanvraag!
Wij zullen dit onmiddellijk behandelen en
met U kontakt opnemen.